Generation Tux

1517 Wisconsin Ave NW, Washington, DC 20007

Market: Retail
Size:
2000 sqft
Project Team: McClennan Architects & Starch Creative
Status:
Completed

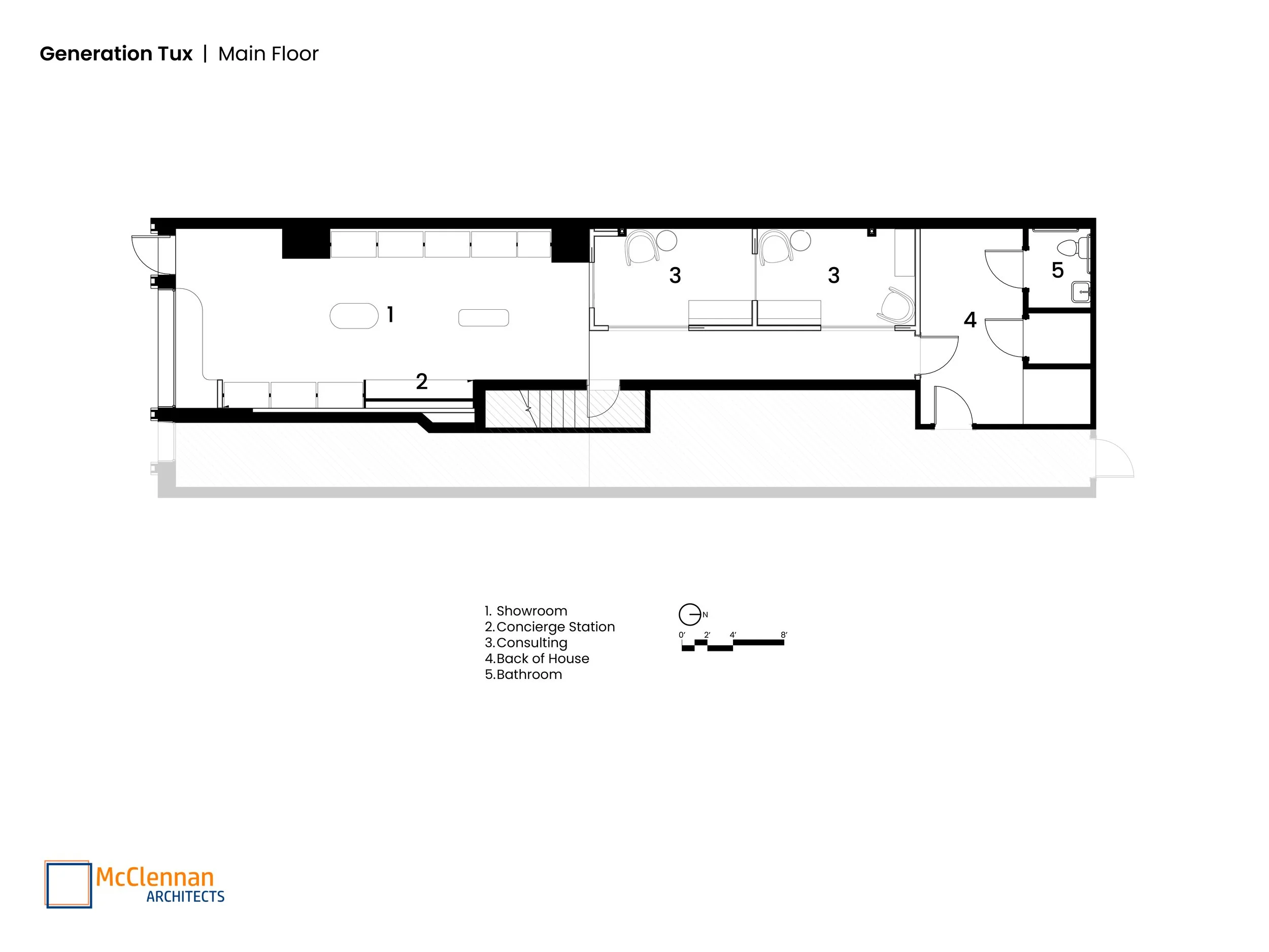
Located throughout the US, Generation Tux’s retail location in Georgetown encapsulates the brand’s quality focus through the interior design. With ample space to view, search, and try-on products, the finishes and furniture were articulated so every visit to Generation Tux is as luxurious as their suits.

All photo rights to Generation Tux.

A close-up shot of the racks at Generation Tux in Georgetown, which was led in design by McClennan Architects.
Previous
Previous

Talkin' Tacos