Design Process

Designing by drawing inspiration from regional context, historical influences, and client vision helps create timeless and authentic expressions of place.
Examples in this section come from Tevis Place.

  1. Site Planning & Programming

  2. Building Design

  3. Podium & Structure

  4. Common Space & User Experience

  5. Unit Design

Site Planning & Programming

We begin with defining the site and street edge, which gives us boundaries to help with iterating to create a balance between necessary density and open space. Then, site functions are organized so public spaces are engaging and private spaces are secured, finally pathways are identified for access and egress.

The site planning for Tevis Place, which helps create sensational, beautiful affordable housing for everyone. Through iteration, research, and concept development, housing projects are brought to life.

Building Design

The general shape of the project begins to form through massing, paying attention to height, setbacks, and access to natural light and ventilation. Then the façade takes priority, as exterior elements and interior layouts are manipulated to create a true logic between envelope and plan. Finally, exterior design cues are used to create clear understanding of building program at the primary entrances and spaces.

McClennan Architects designed the Tevis Place housing project in an iconic way to bring life to the city and happiness to its residents. Through massing, research, and conceptualization, building design becomes an integral part of the design process.

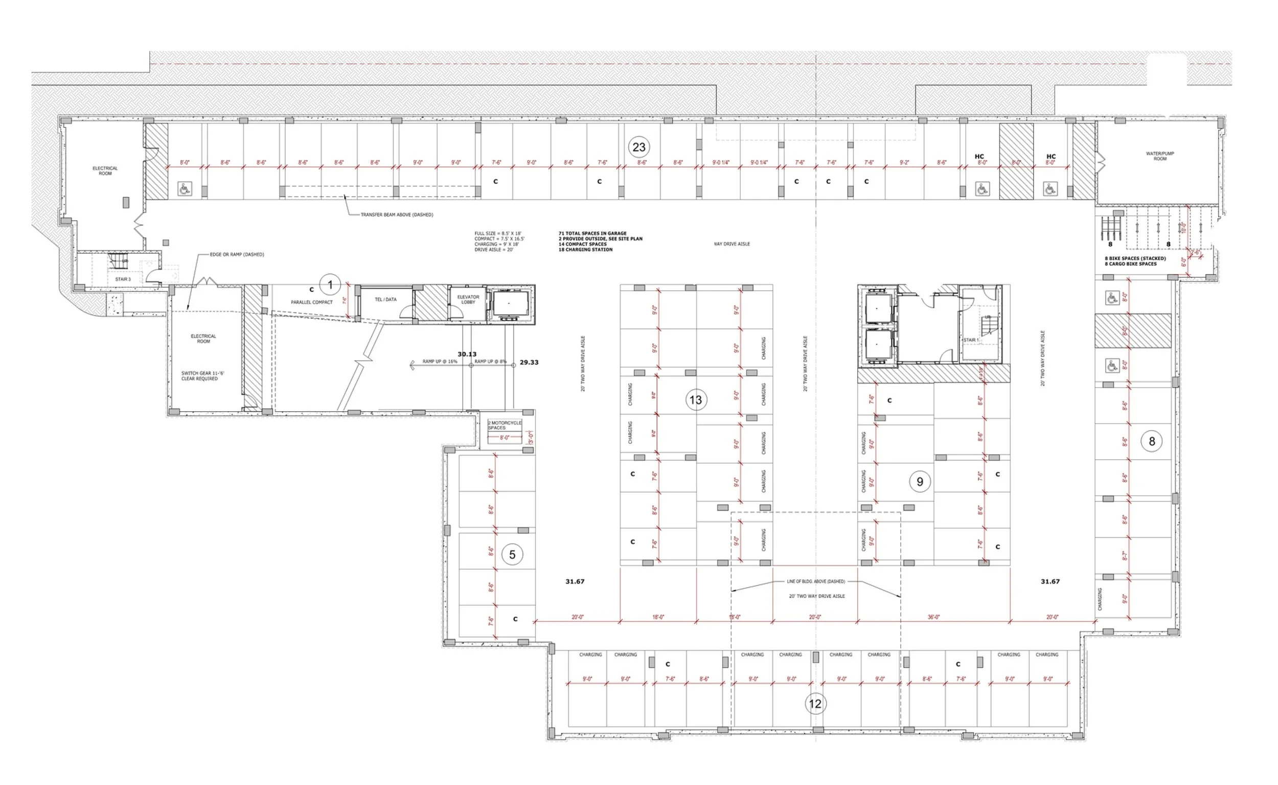
Podium & Structure

An efficient column layout provides structural performance, improves cost-effectiveness, and needed vehicular circulation. Within it, utility rooms are strategically located for direct connection and efficient service access. The core of the building is shaped from here, maximizing vertical access and interstitial spaces.

McClennan Architects gives intense thought to the structure and podium of a building, in this case Tevis Place. Laying out structure maximizes parking space, building efficiency, overall stability and satisfaction using advanced materialproducts.

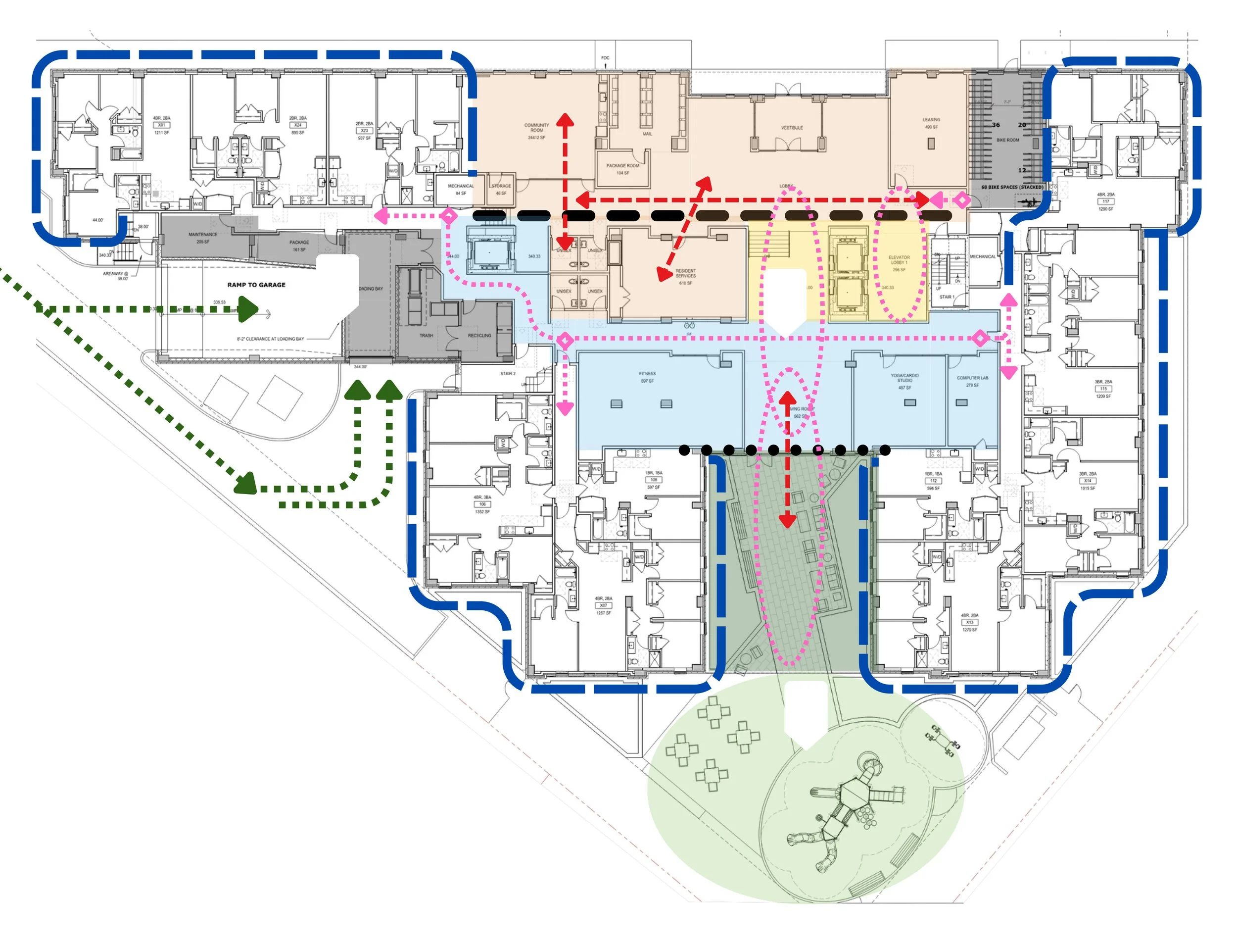
Common Space & User Experience

After shaping the celebrated main entry, the public spaces within are designated and designed. The back of house, along with maintenance areas, are kept out of the way of residents. And if needed, outdoor amenities and design can help complete the full living experience.

The user experience of Tevis Place was essential to its design, and McClennan Architects focuses heavily on maximizing safety, privacy, and overall enjoyment. Distributing ammentities and safe access points for residents.

Unit Design

It all starts with efficient circulation, with the centralized cores meeting code requirements and helping optimize the unit layouts. We aim to design generous layouts with efficient space planning, that provide ample light and enhance comfort. The various units in our projects feature consistent layouts with minimal variations in configuration across each type.

Click Here for more Tevis Place
McClennan Architects gives intense care to Unit Design. With large buildings like Tevis Place and over 200 units, ample space is given to each individual, with consistent layouts providing to the needs of all residents of the building.