Front View of McClennan Architects' design for 2229 M Street NE, a senior affordable housing project located in Washington, DC.

2229 M Street NE

2229 M Street NE, Washington, DC, 20002

Client: Lincoln-Westmoreland Housing, INC
Market: Senior Affordable
Size:
90,000 sqft
Units:
92
Status:
In Progress

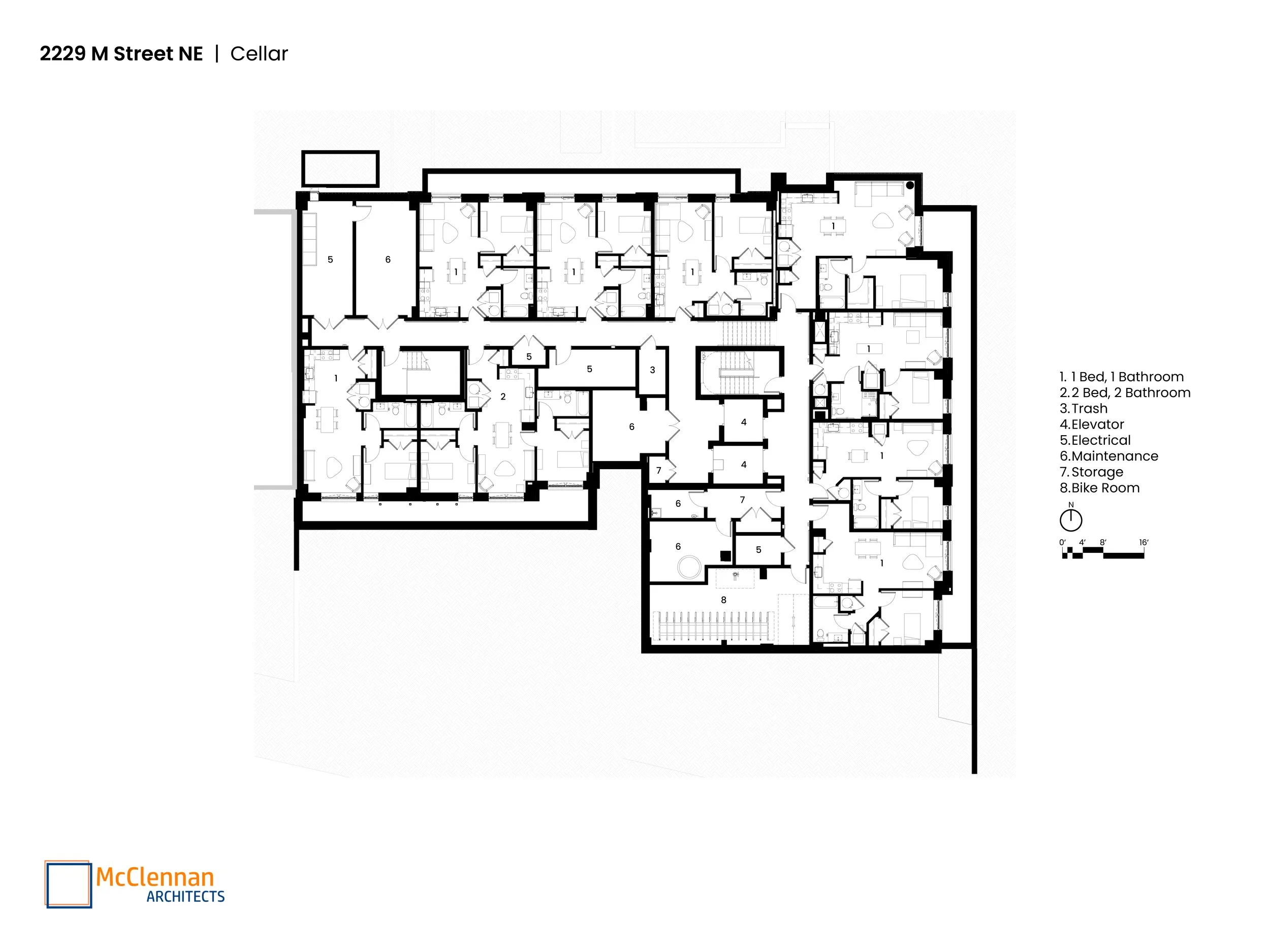
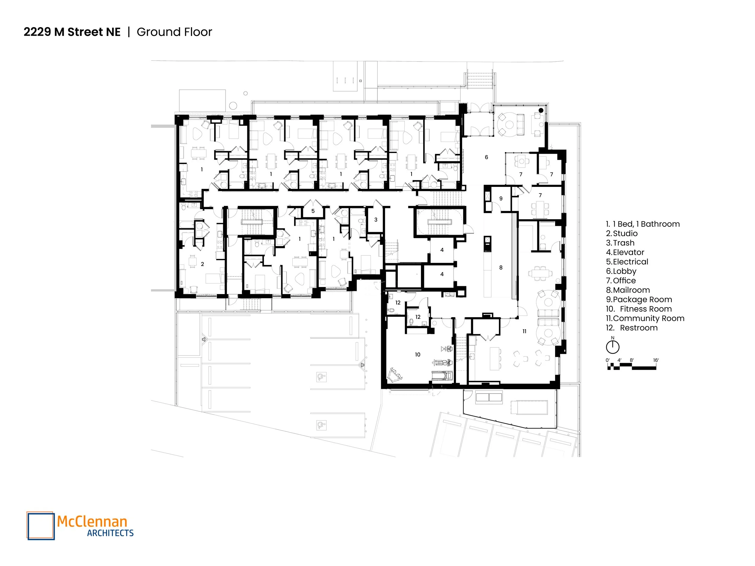
Located adjacent to the US National Arboretum, 2229 M St NE is an affordable senior-residential development in Washington, DC. It contains 92 units designed for a serene and dignified living environment near one of the city’s most cherished green spaces. Funded through the US Department of Housing and Urban Development (HUD), this project reflects a strong public commitment to housing equality and stewardship.

The design integrates moments of community with precise residential design. Each unit offers scenic views of the surrounding neighborhood, with an iconic central egress containing spaces for interaction and community. Situating within mature trees and landscaped greenery creates a peaceful atmosphere that encourages wellness and outdoor activity. These aspects go beyond performance standards and meet the rigorous Passive House Certification standards, ensuring exceptional building efficiency and comfort.

Next
Next

1444 Alabama Ave SE